‹ › ×
    • Accueil
    • L'atelier
    • Logement individuel
    • Logement collectif
    • Tertiaire et industrie
    • Établissements publics
    • Projets en développement
    • Contact

    Établissements publics / Maison de quartier Ville d'Hiver

    Informations du projet

     

    Équipe

    Atelier d'architecture Baobab architecte mandataire

    Mission complète avec Diag et OPC

     

    Design Stuff (Michel Troulay) designer associé

     

     

    Maître d'ouvrage

    Mairie d'Arcachon

     

    Localisation

    Arcachon, Gironde (France)

     

    Année de réalisation

    2008

     

    Stade d'avancement

    Livré

     

    Données du projet

    Surface de plancher : 191m²

    Coût : 218 000€ HT

     

    Crédits

    Photos Atelier d'architecture Baobab

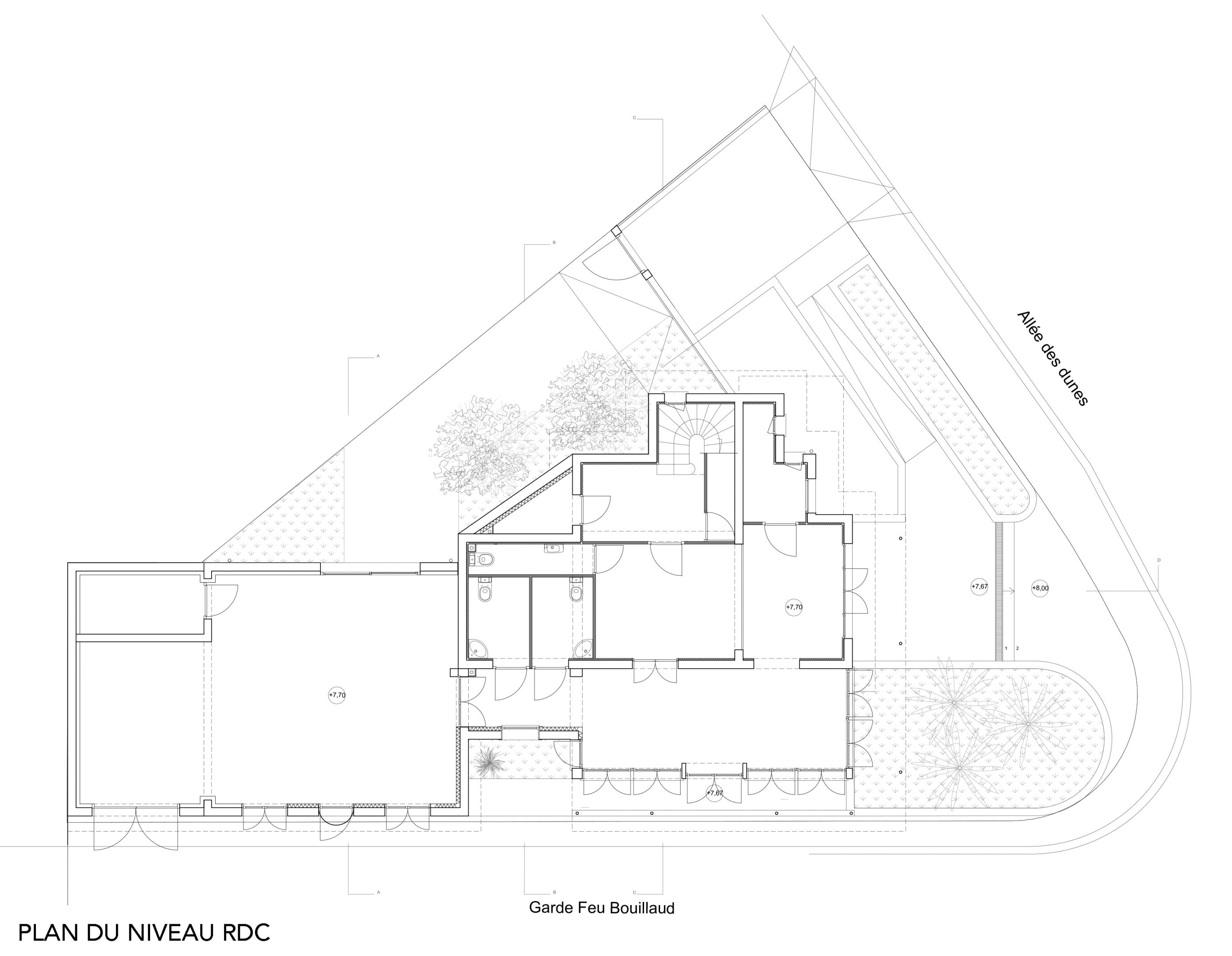
    Maison de quartier de la Ville d'Hiver/ Arcachon

     

    La commune d’Arcachon a fait l’acquisition d’une propriété place des Palmiers pour y établir la Maison de Quartier de la Ville d’Hiver. Le projet tire partie de l’implantation du bâtiment à l’angle de 2 rues d’importances différentes, pour déterminer les usages et les hiérarchiser. Sur la rue la plus passante, face à la place des Palmiers, l’entrée principale donne accès directement au bureau de Poste et au guichet d’Arcachon Solidaire. La salle d’expositions prend place dans la véranda à l’angle des 2 rues, tandis que la salle de réunion se glisse dans la partie du bâtiment la plus au calme, en retrait de la circulation.

     

    Les nouveaux locaux, issus de la réhabilitation et de l’extension du bâtiment d’origine, sont accessibles au public et comprennent :

    - un hall d’accueil,

    - un bureau de poste,

    - des locaux annexes au bureau de poste,

    - une salle d’exposition,

    - une salle de réunion avec office et vestiaire,

    - les locaux du personnel.

     

    Les espaces extérieurs, dont le jardin sur l’arrière, sont plantés d’arbres de moyen développement. 3 palmiers sont plantés en bouquet sur le parvis, dans le virage, un cyprès dans le redan entre les 2 constructions, dont le fond est habillé d’un treillage sur lequel pousse un rosier grimpant à grosses fleurs.

    Détails du projet

    État avant travaux

    MQVH_photos_existant

    Documents graphiques